選前 給柯P參考 有關遊民問題 柯文哲上任兩年回顧 (之一)
兩年前台北市長選舉
選前 給柯P參考 有關遊民問題 (公民記者 謝明海 提供)
希望以下意見能夠提供柯P參考。felix.tpe@gmail.com 2014-10-17

我對遊民的基本觀點:
-
遊民問題政府無可逃避必須面對,面對遊民的關鍵是服務而不是管理。
讓遊民『被看見』是幫助遊民最根本的要件。政府反其道而行,想盡辦法將遊民藏起來、視而不見,最好是消失。
-
服務的目的是讓遊民有更好的活著的品質(我實在不敢說是生活品質)而不是政府為了數字、成效和政績而想出各種奇怪的規定,只想要減少遊民數量甚至消滅遊民。

三)遊民不是乞丐,乞丐也不一定是遊民。
遊民是社會造成的,所以遊民散佈在社會各處是正常現象。
遊民的成因很多,低收入者碰上任何意外或萬一,都有可能成為遊民。
四)經濟發展兩極化的結果,流浪也是一種選擇,無關對錯。
『自由流浪的新嘻皮主義』逐漸成形,不同身份的遊民可能會快速增加。
http://www.peopo.org/news/249321
五)我不厭其煩一再強調,遊民問題不是用解決的,而是用服務的。
政府用他的資源加上愛心:
a)用愛心和服務代替管理和施捨。
b)能服務多少算多少,從整齊清潔的人身服務開始做起。
c)流浪也是一種選擇,政府應該尊重並為他的選擇提供服務。
六)沒有面子問題,遊民的照顧比面子重要。
類似的水泥涵管,如果在艋舺附近的淡水河邊,『順著水流方向』在堤防外靠牆固定,每個涵管之間保持固定安全距離,真有颱風或洪水時,也不會阻礙水流(很多中南部的臨時橋,也都是用涵管當橋墩),不失為遊民臨時庇護的權宜措施。
像這種很務實的方法,政府不會這樣做,因為太沒面子了。相反的,政府也沒有能力用什麼有面子的方法,來協助遊民解決露宿街頭的問題。
七)延伸參考:我的遊民大夢
http://we-report.org/node/249/report
http://www.peopo.org/list/post/23686/1231/all
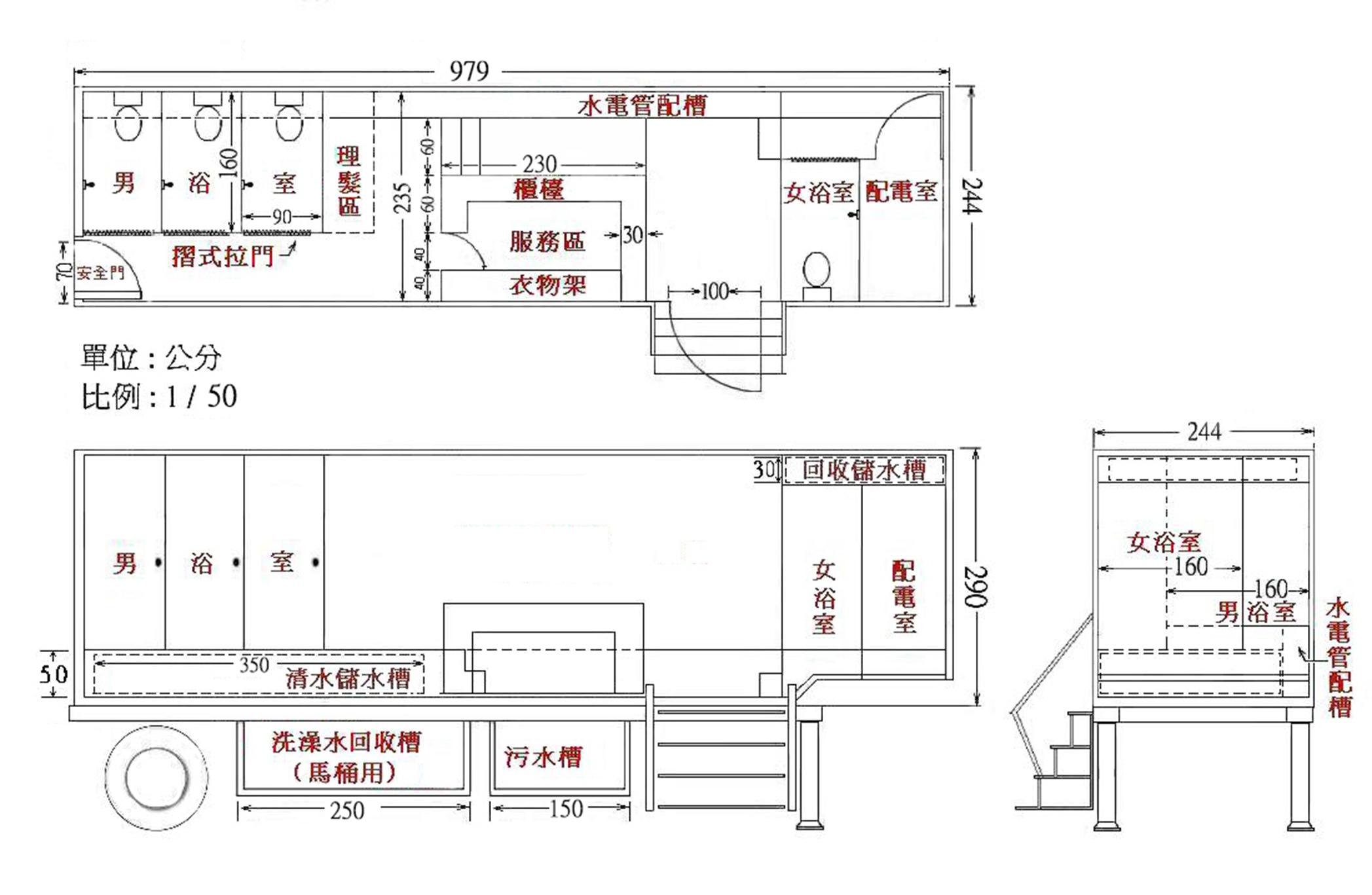
配合四處流浪的遊民,建議市府提供可移動的衛浴貨櫃車(緊急災難時亦可使用)
(我願意負責發起民間募款,打造完成後捐給政府使用)
附圖:40尺移動式貨櫃(有六間衛浴一個理髮空間)

附圖:32尺縮小版(有四間衛浴一個理髮空間)
衛浴貨櫃車巡迴台北市西區五個定點:
一號車 五個巡迴服務定點如地圖:
A/ F 萬華區龍山寺遊覽車停車場 (星期二)
B/ 西門町中華路長沙街口公園 (星期三)
C/台北車站北平東路停車場 (星期四)
D/愛國東路中正國中旁停車場 (星期五)
E/水源快速道路青年公園停車場 (星期六)
F/萬華區龍山寺遊覽車停車場 (星期日)


回應